Cross Section
System Specification
| Profile Alloy | 6063 |
|---|---|
| Glass Thickness | 6, 8, 10, 11.52, 12, 13.52, 24, 26, 28 |
| Max Shutter Height* | 3600 |
| Max Shutter Weight | 300kg |
| Multi Locking | Yes |
| Mosquito Mesh Solution | Fiber / SS & Security Mesh |
| Hidden Bottom | No |
| Corner Opening | Yes |
| Roller Rail | Stainless Steel |
| Integrated Railing | Yes |
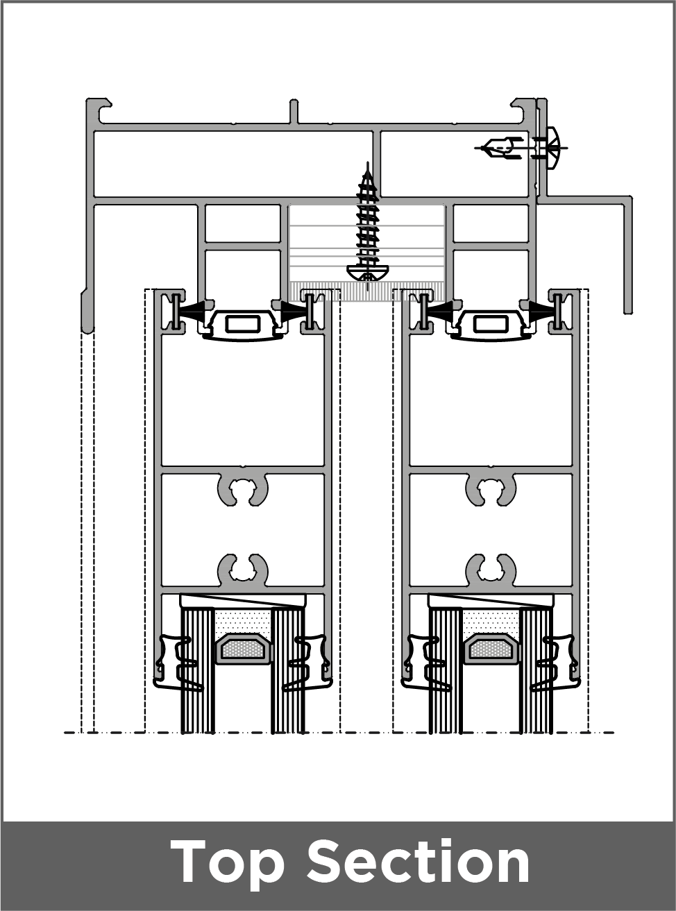
Section Detail
| Frame Height | 47 |
|---|---|
| Frame Width 2 Track | 91 |
| Frame Width 3 Track | 140 |
| Interlock Sightline | 26 |
| Center Opening Profile Width | 63 |
Typologies






